2 300 000,00 PLN (1 356,13 PLN)

Inwestycyjna - na terenie zabudowy mieszkaniowej

Działka (Usługowo-mieszkaniowa) na sprzedaż,
Łódź

Kontakt z agentem: Grupa Stryjewscy
Opis nieruchomości

Na sprzedaż atrakcyjna działka usługowo-mieszkaniowa o powierzchni 1696 m² zlokalizowana w Łodzi, w dzielnicy Górna.
To propozycja dla inwestorów, deweloperów czy przedsiębiorców poszukujących gruntu w dobrze skomunikowanej i rozwijającej się części miasta.

Działka jest narożna, o regularnym kształcie (80 m szerokości i 22 m głębokości), położona pomiędzy dwiema ulicami - jedna z nich to ruchliwa, osiedlowa droga zapewniająca bardzo dobrą ekspozycję.

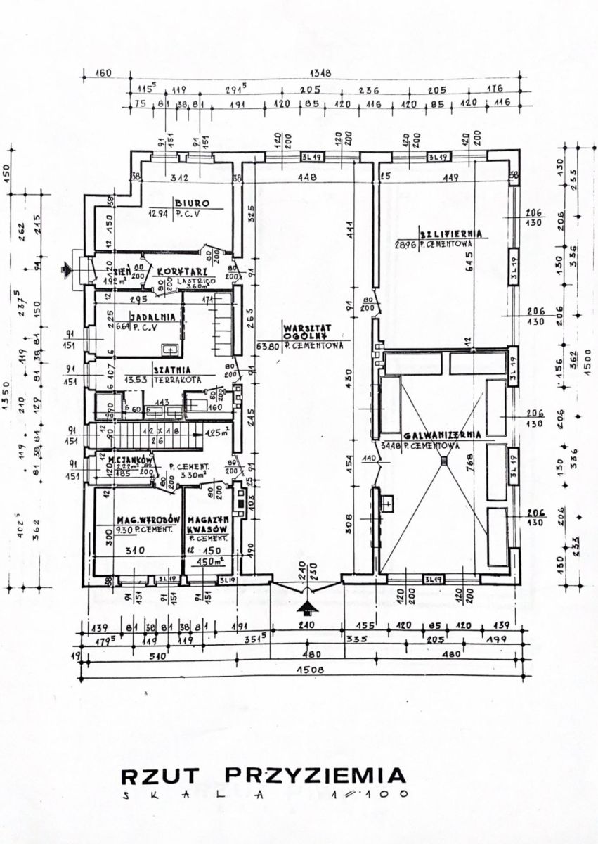
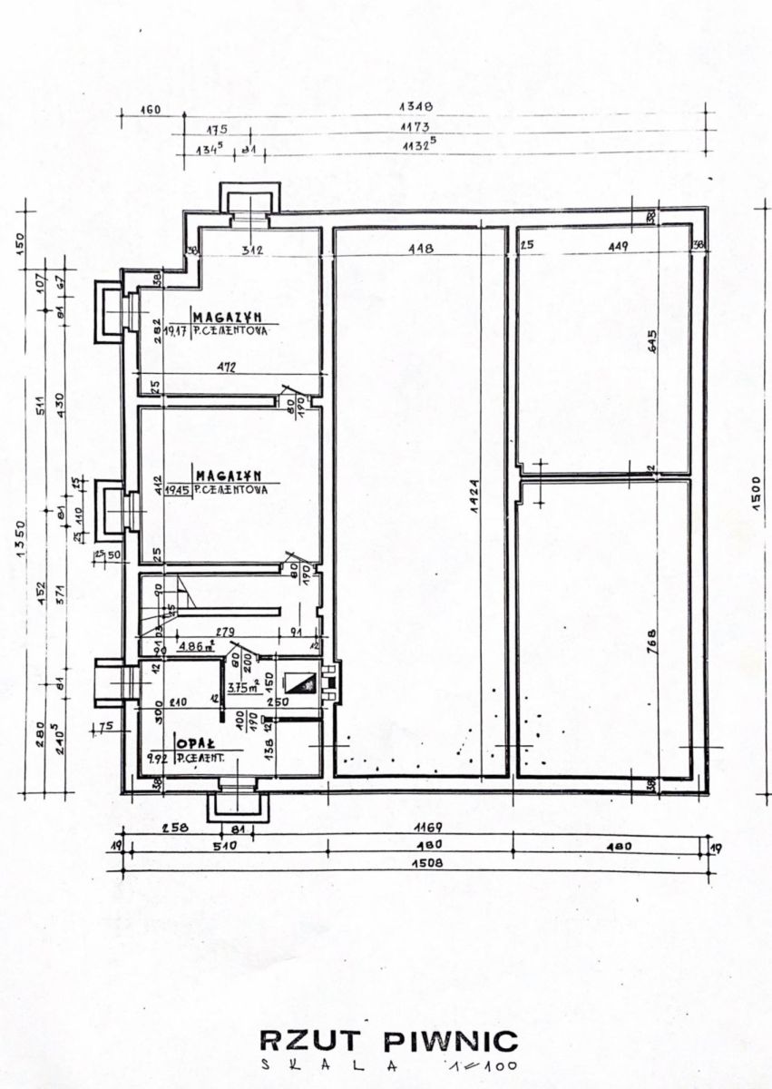
Charakterystyka Budynku:

Na terenie nieruchomości znajduje się parterowy budynek handlowo-usługowo-biurowy z podpiwniczeniem o powierzchni ok. 200 m², obecnie wynajmowany, co stanowi dodatkowy atut inwestycyjny.

Dodatkowe atuty budynku i lokalizacji:

Świetna lokalizacja - działka w samym środku osiedla domów jednorodzinnych i segmentów, z dostępem do miejskiej infrastruktury (kanalizacja, prąd, gaz, wodociąg, internet).

Brak konkurencji handlowej w okolicy - na terenie osiedla nie ma sklepów ani usług, co daje unikalną możliwość stworzenia miejsca odpowiadającego na lokalne potrzeby mieszkańców.

Plan miejscowy - teren objęty MPZP z przeznaczeniem pod zabudowę jednorodzinną i usługową (symbol 2MN/U).

Parametry zabudowy:

wskaźnik powierzchni zabudowy - max 35% (ok. 593 m²),

intensywność zabudowy - 0,1 do 0,6,

powierzchnia biologicznie czynna - min 35%,

wysokość zabudowy: od 8 do 10,5 m w zależności od kąta nachylenia dachu.

Podsumowanie:

Nieruchomość stanowi doskonałą inwestycję zarówno dla biznesu usługowego, jak i pod przyszłą zabudowę mieszkaniową z funkcją usługową. Dzięki lokalizacji w sercu osiedla oraz dużemu potencjałowi zabudowy, oferta ta pozwala na rozwój różnorodnych projektów.

Zapraszam na prezentacje oraz do składania ofert!

Kamil Stryjewski
tel: +48 608 199 278
Grupa Stryjewscy - Nieruchomości i Finanse

Kupujący nie ponosi kosztów obsługi agencyjnej !

Współpracujemy z każdym pośrednikiem!

▪️ Organizujemy formalności niezbędne do uzyskania kredytu hipotecznego który pozwoli Ci sfinalizować zakup wymarzonej nieruchomości
▪️ Rzut budynku służą wyłącznie celom poglądowo-orientacyjnym i nie stanowią podstawy do wykonywania na nim prac architektoniczno-budowlanych.
▪️ Powyższa oferta ma charakter informacyjny i nie stanowi oferty handlowej w rozumieniu Art. 66 par. 1 Kodeksu Cywilnego. Opis nieruchomości został sporządzony na podstawie informacji uzyskanych od właściciela i może być aktualizowany.

Mapa
Kontakt z agentem

Grupa Stryjewscy

Kamil Stryjewski
Nieprawidłowy adres E-mail

Strona korzysta z plików cookie w celu realizacji usług zgodnie z Polityką prywatności. Możesz określić warunki przechowywania lub dostępu do cookie w Twojej przeglądarce.

.