Jeśli marzysz o domu otoczonym naturą to ta nieruchomość znajduje się w sercu lasu, oferując ciszę, prywatność i codzienny kontakt z naturą, a jednocześnie zaledwie kilka minut od Pabianic i w bliskiej odległości od Łodzi- 10 km do Portu Łódź oraz Ikei:)
Charakterystyka budynku
Dom jednorodzinny, wolnostojący o powierzchni 185 m², wybudowany w 2013 roku w technologii tradycyjnej murowanej. Budynek posadowiony na działce o powierzchni 1000 m², położonej w spokojnej, malowniczej okolicy Bychlewa
Dom został wyposażony w nowoczesny piec na ekogroszek,,dodatkowo wyposażony w ogrzewanie podłogowe, co zapewnia komfort cieplny i ekonomiczne użytkowanie.
Przydomową oczyszczalnię ścieków, co stanowi ekologiczne i praktyczne rozwiązanie.
Na działce znajduje się studnia, która zapewnia dodatkowe źródło wody. To nie tylko oszczędność w codziennym użytkowaniu, ale również duża zaleta w pielęgnacji ogrodu czy podlewaniu roślin. Studnia gwarantuje pełną niezależność wodną i doskonale wpisuje się w charakter domu położonego w sercu natury.
Rozkład pomieszczeń:
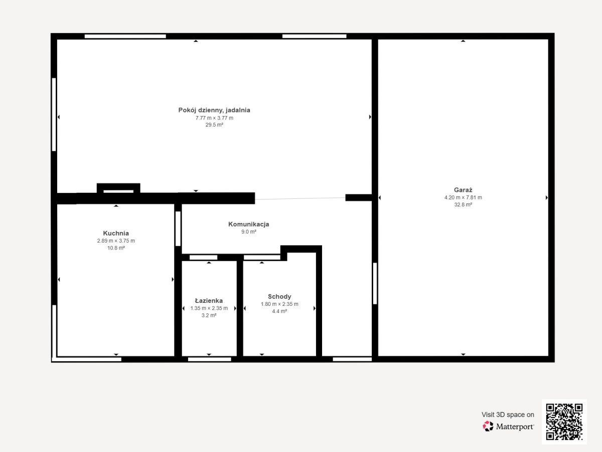
Parter
Na parterze znajduje się przestronny salon z wyjściem na ogród, który stanowi idealne miejsce do wypoczynku i spędzania czasu w gronie rodziny. Duże przeszklenia zapewniają doskonałe doświetlenie wnętrza i tworzą naturalne połączenie domu z otaczającą go zielenią.
Obok salonu mieści się osobna, funkcjonalna kuchnia, wyposażona w meble w zabudowie, co gwarantuje wygodę codziennego użytkowania oraz dużo miejsca do przechowywania.
Na parterze znajduje się również łazienka, praktycznie zaaranżowana i w pełni wyposażona, a także garaż w bryle budynku, zapewniający wygodę i bezpieczeństwo.
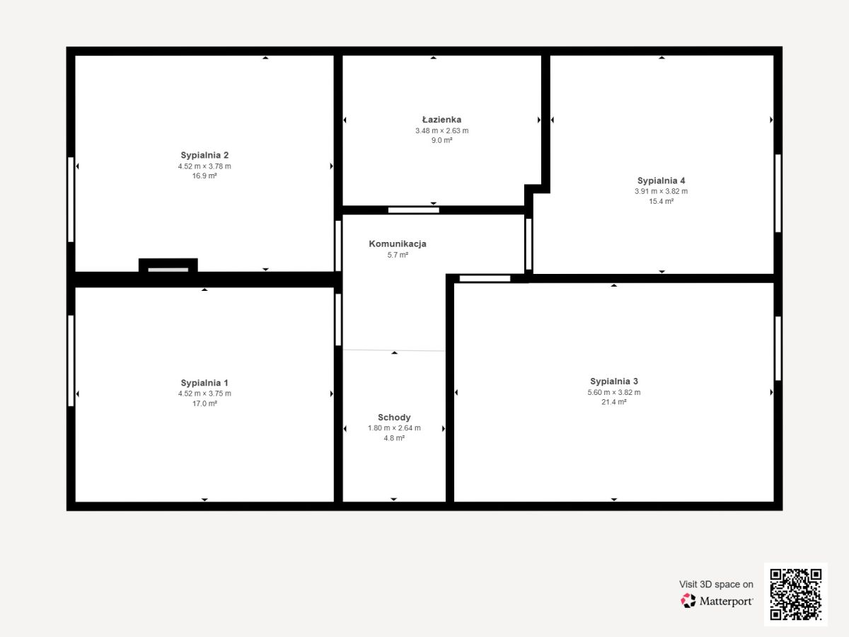
Piętro domu składa się z czterech ustawnych sypialni, które można wykorzystać jako pokoje dziecięce, sypialnie główne, pokoje gościnne lub gabinety. Układ pomieszczeń zapewnia komfort i prywatność każdemu domownikowi, a jasne, przestronne wnętrza umożliwiają dowolną aranżację wnętrz według własnych potrzeb.
Lokalizacja:
Bychlew leży ok. 3 km od Pabianic i 10 km od Port Łodź -Ikea , co pozwala na szybki dojazd do dużych miast. Dom znajduje się przy lokalnych drogach utwardzonych i asfaltowych, zapewniających wygodny dostęp zarówno do centrum Pabianic, jak i głównych tras wylotowych w kierunku Łodzi.
W okolicy kursują linie autobusowe łączące Bychlew z Pabianicami, skąd łatwo można przesiąść się na transport do Łodzi.
Najbliższa stacja PKP w Pabianicach (ok. 3 km) zapewnia połączenia regionalne do Łodzi i dalszych miejscowości.
Szybki dostęp do drogi krajowej nr 71 oraz autostrady A1 (ok. 20-25 minut samochodem), co ułatwia podróże zarówno w regionie, jak i poza województwem.
Nieruchomość w Bychlewie znajduje się w bezpośrednim sąsiedztwie Szkoły Podstawowej im. Kornela Makuszyńskiego oraz przedszkola.
Podsumowanie:
Gotowy do zamieszkania dom w sercu lasu, w spokojnej i malowniczej okolicy.
Dodatkowym atutem jest bliskość szkoły i przedszkola, a także szybki dojazd do Pabianic i Łodzi.
To idealna propozycja dla osób szukających komfortowego, przestronnego domu w otoczeniu przyrody, z ekologicznymi rozwiązaniami i wszystkimi udogodnieniami w zasięgu ręki.
Zadzwoń, by zarezerwować termin i zobaczyć, jak wyjątkowy jest ten dom na żywo.
Nie przegap tej oferty - skontaktuj się i umów na prezentację!
Kamila Stelmaszewska
Grupa Stryjewscy - Nieruchomości i Finanse
+48 792 388 382
Współpracujemy z każdym pośrednikiem!
Organizujemy formalności niezbędne do uzyskania kredytu hipotecznego, który pozwoli Ci sfinalizować zakup wymarzonej nieruchomości.
Rzut lokalu służy wyłącznie celom poglądowo-orientacyjnym i nie stanowi podstaw do wykonywania na nim prac architektoniczno-budowlanych.
Powyższa oferta ma charakter informacyjny i nie stanowi oferty handlowej w rozumieniu Art.66 par.1 Kodeksu Cywilnego. Opis nieruchomości został sporządzony na podstawie informacji uzyskanych od właściciela i może być aktualizowany.
1 250 000,00 PLN (6 749,46 PLN)
!! Dom w sercu lasu
Dom (Wolnostojący) na sprzedaż,
Bychlew, Nowa
Dane szczegółowe
- Typ transakcji: sprzedaż
- Typ nieruchomości: Dom
- Lokalizacja: Bychlew, Nowa
- Powierzchnia:185,20 m2
- Liczba pokoi: 6
- Rok budowy: 2013
- Liczba pięter: 1
-
Powierzchnia działki:
1 000 m2
- Numer oferty: SSN216621
- Cena: 1 250 000,00 PLN
- Cena za m2: 6 749,46 PLN
Kontakt z agentem: Grupa Stryjewscy
Kamila Stelmaszewska
Opis nieruchomości
Wirtualny spacer po nieruchomości
Mapa
Kontakt z agentem
Grupa Stryjewscy